عملنا
محفظة دوريان باهر: تجاري
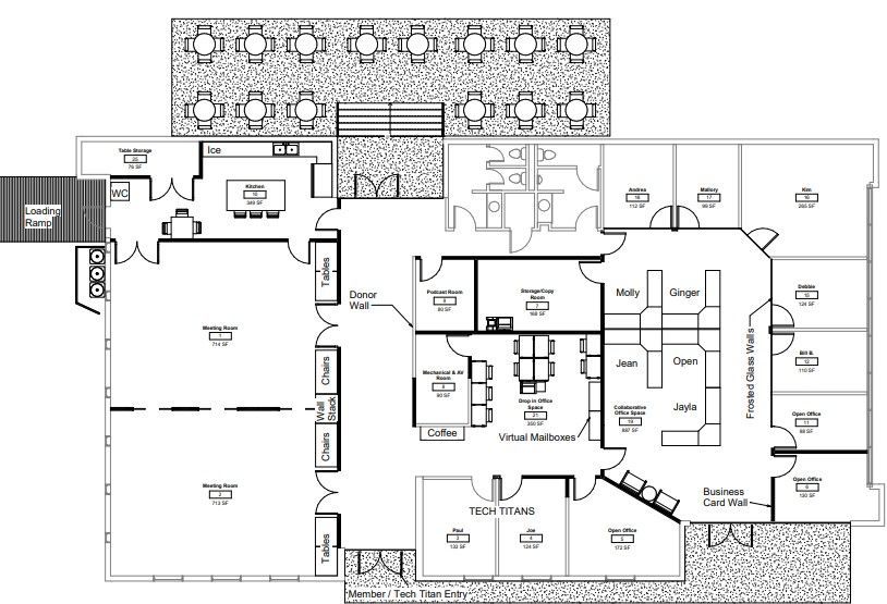
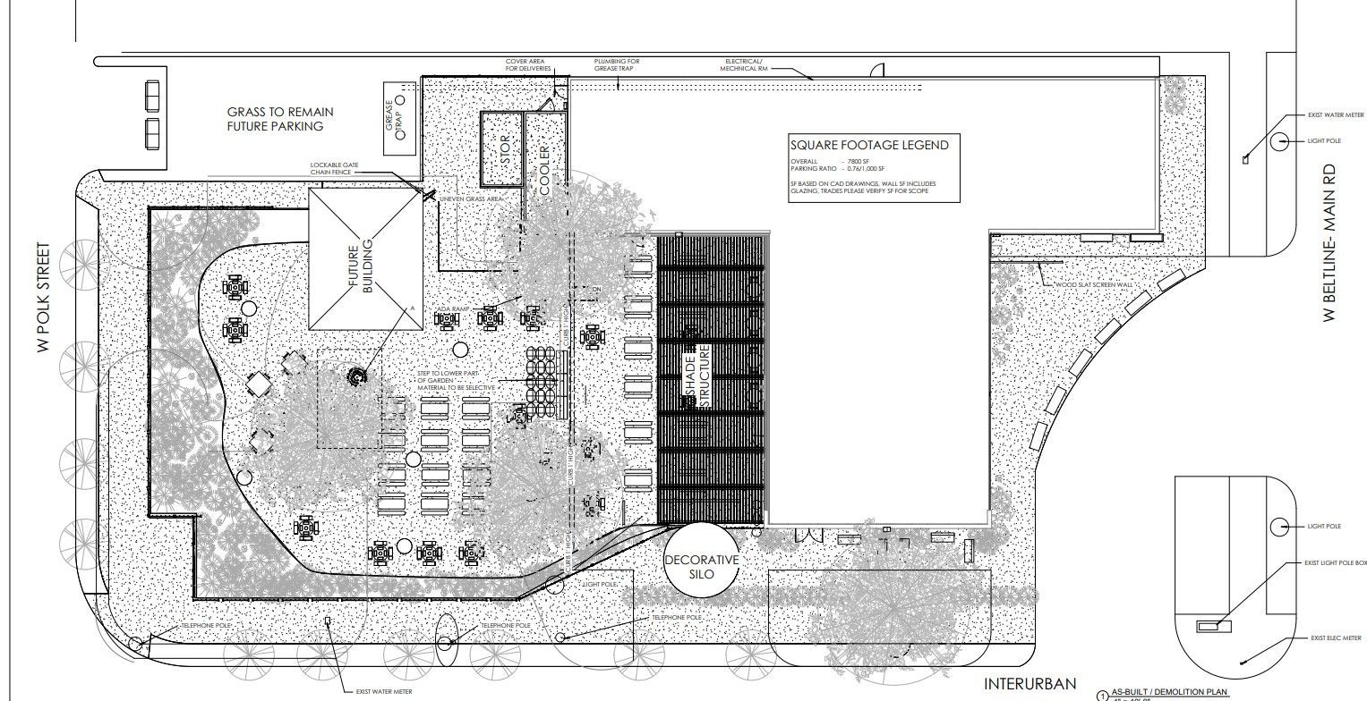
مرحبًا بكم في المحفظة الرسمية لشركة دوريان بحر - حيث يلتقي الإبداع بالأناقة في المجال التجاري. في دوريان بحر، نحن متخصصون في تصميم مساحات تجارية مذهلة بصريًا لا تروق للحواس فحسب، بل تخدم أيضًا احتياجات الأعمال الوظيفية بشكل فعال. تسلط محفظتنا الضوء على مجموعة واسعة من المشاريع التجارية، حيث يُظهر كل منها التزامنا بدمج التعبير الفني مع حلول التصميم العملية المصممة خصيصًا للشركات.
انغمس في محفظتنا لتكتشف أمثلة لأعمالنا السابقة، واكتسب رؤى حول عملية التصميم الشاملة لدينا، واستكشف الحلول المبتكرة التي طورناها لعملائنا التجاريين. سواء كنت تبحث عن الإلهام أو تفكر في شراكة لمشروعك التجاري القادم، فإن دوريان بحر على استعداد لرفع مستوى بيئة عملك ببراعة جمالية لا مثيل لها واحترافية متفانية.
المشاريع التجارية الحديثة والرؤى والاتجاهات
















































































